欢迎进入国家中职改革发展师范学校建设专题网站!

课程章节-项目十三:粗车循环指令G71加工实训

发布日期:2017-09-08  浏览次数:14603

学习目标:     
1、掌握G71和G70指令的正确使用方法。    
2、学会分析简单轴类零件的加工工艺。    
3、熟悉掌握外圆刀的安装及对刀方法。    
4、掌握利用刀补来控制尺寸精度的基本方法。    
5、理解循环指令的走刀路线。
知识点击:
G71指令适用于棒料毛坯粗车外圆或粗车内径,以切除毛坯的较大余量,使用G71指令完成零件的粗车加工之后,可以在用G70指令进行精加工,切除粗车循环中留下的余量。
一、实训内容
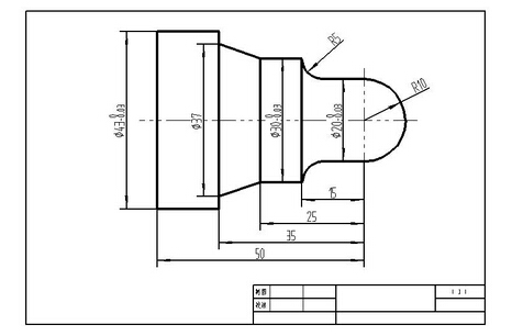
加工如图1-1所示零件。毛坯为Φ45mm×50mm的棒料。

二、实训步骤
1、工艺分析
先车出端面,并以端面的中心为原点建立工件坐标系。
该零件可采用G71进行粗车,然后用G70进行精车。注意退刀时,先X方向后Z方向,以免刀具撞上工件。
2、确定工艺方案
车端面;
从右至左粗加工各面;
从右至左精加工各面;
3、刀具选择
将所选定的刀具参数填入表1-1轴类零件数控加工刀具卡片中,便于编程和操作管理。

表1-1数控加工刀具卡

产品名称

 

零件名称

 

零件图号

 

工步号

刀具号

刀具名称

数量

加工表面

刀尖半径/mm

备注

1

T01

93°外圆粗车刀

1

平端面

0.8

 

2

外轮廓

 

3

T02

93°外圆精车刀

1

外轮廓

0.4

 

编制

 

审核

 

批准

共1页

第1页

4、切削用量选择
根据被加工表面质量要求、刀具材料和工件材料,参考切削用量手册或有关资料选取切削速度与每转进给量,填入表1-2工序卡中。

表1-2  数控加工工序卡

单位名称

蚌埠科技工程学校

班级学号

姓名

成绩

零件名称

零件图号

 

 

 

 

 

工序号

程序编号

夹具名称

数控系统

使用设备

材料

场地

001

O0001

三爪卡盘

FANUC

CK6140

45钢

数控加工实训中心

工步号

工步内容

刀具号

刀具规格mm

主轴转速r/min

进给量mm/r

背吃刀量mm

备注

1

手动平端面

T01

20×20

500

 

 

手动

2

粗车外轮廓,留余量0.5mm

0.2

2

自动

3

精车外轮廓至尺寸要求

T02

20×20

1200

0.1

0.25

自动

编制

 

审核

 

批准

 

共1页

第1页

5、编写程序,输入数控装置,图形模拟演示,检查程序。

程序号:O0001

程序段号

程序内容

说明

N10

T0101 M08 ;

换1号粗车刀,切削液开

N20

M03 S500 ;

主轴正转500 r/min

N30

G00 X47.0 Z2.0 ;

快速进刀至循环起点

N40

G71 U2 R0.5 ;

外圆粗车循环指令,每次背吃刀量2mm ,退刀量为0.5mm

N50

G71 P60 Q140 U0.5 W0.1 F0.2 ;

按N60~N140指定的精加工路径,X向留0.5mm精加工余量,Z向留0.1mm精加工余量,粗车进给量0.2mm/r

N60

G00 X0. ;

X向快速进刀

N70

G01 Z0. F0.1 ;

Z向进刀,精加工进给量0.1 mm/r

N80

G03 X20.0 Z-10. R10 ;

车R10 圆弧

N90

G01 Z-20.0 ;

车Φ20外圆

N100

G02 X30.0 Z-25.0 R5 ;

加工R5 圆弧

N110

G01 Z-35.0 ;

车Φ30 外圆

N120

X37.0 Z-45.0 ;

车锥度

N130

X43.0 ;

车台阶面

N140

X46.0 ;

X向退刀

N150

G00 X100.0 Z100.0 ;

快速退刀至换刀点

N160

M05 ;

主轴停止

N170

M00 ;

程序暂停

N180

T0202 ;

换2号精车刀

N190

M03 S1200 ;

主轴正转1200 r/min

N200

G00 X47.0 Z2.0 ;

快速进至循环起点

N210

G70 P60 Q140 ;

精车循环

N220

G00 X100.0 Z100.0 ;

快速退刀

N230

M09 ;

切削液停

N240

M30 ;

程序结束

6、对刀:依次在工件毛坯上对好每一把刀在X、Z方向的坐标值
① X方向对刀:回零→【MDI】→输入“S400 M03;T0101;”→按下【CYCLE START】键转动主轴。
【手摇】→切削外圆→沿Z轴退刀→停车测量外径→按【OFS/SET】键→按【偏置】键→【形状】里→输入“X外圆直径值”→按【测量】软键→刀具X向补偿值自动输入到几何形状里
② Z方向对刀:【手摇】→刀具切削端面→沿X轴正方向退刀→【形状】→输入“Z0” →按【测量】软键→刀具Z向补偿值自动输入到几何形状里。
7、自动运行程序,加工工件。
8、粗车后测量零件尺寸,根据工件图样要求的尺寸精度修改刀具磨损量;再次运行程序,加工出合格工件。
四、检验与考核
检验与考核的内容及标准见表1-3。

表1-3 考核内容及标准

 

序号

考核内容

考核标准

评分标准

得分

 

1

设置工件坐标系

没有设定工件坐标系原点,全扣;原点位置设定不合理,扣2分

4

 

2

刀具安装

每把不合理扣2分

4

 

3

工艺路线、工艺参数

工艺路线不合理扣10分;工艺参数选择不合理扣10分

15

 

4

换刀点的选择

与工件等发生干涉,全扣

5

 

5

数控指令的使用

一般性指令错一处扣1分;出现一处危险性指令扣5分

10

 

6

程序结构

无程序名扣1分;程序格式与系统不相符,全扣

5

 

1

程序输入

超过10 min ,全扣

4

 

2

图形模拟演示

检查程序正确

3

 

3

对刀操作

方法正确,每把刀2分

4

 

4

自动运行程序

操作过程正确

3

 

5

刀具补偿调整尺寸

方法错误,全扣

3

 

6

安全操作

符合安全操作规程

3

 

1

外圆Φ42 0 -0.03

IT

超差扣3分

5

 

 

Ra

降一级扣2分

2

外圆Φ30 0 -0.03

IT

超差扣3分

5

 

 

Ra

降一级扣2分

3

外圆Φ20 0 -0.03

IT

超差扣3分

5

 

 

Ra

降一级扣2分

4

长度25mm

超差全扣

3

 

5

长度45mm

超差全扣

3

 

6

R10球面

IT

超差扣4分

8

 

 

Ra

降一级扣2分

7

R5圆角

IT

超差扣3分

5

 

 

Ra

降一级扣2分

8

其余表面粗糙度Ra3.2

降一级扣2分

3

 

总计

100